Floating Image

£195,000

2 bedroom Terraced House for sale

Trusley Brook, Hilton, Derby

  • Terraced House
  • 2 bed
  • 1 bath
  • 2 reception

Key Features

  • Chain free
  • Cul de sac
  • Driveway parking
  • Conservatory
  • Guest WC
  • Kitchen diner
  • Two bedrooms
  • Enclosed garden
  • Patio area
  • Popular Hilton

Description

Summary Description

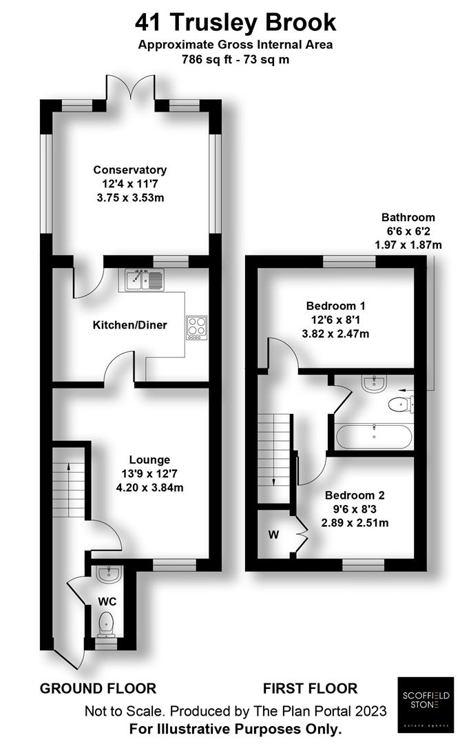
Tucked away in a quiet cul de sac within a well established development of mixed style homes, this two bedroom mid terrace property in Hilton, Derbyshire is an excellent choice for a first time buyer, downsizer, or buy to let investor. Offered chain free, it provides straightforward moving potential, plus the benefit of driveway parking and a conservatory that adds useful, flexible living space.

Inside, the entrance hall leads to a handy guest WC, ideal for day to day convenience. The lounge is finished in a neutral style with wooden flooring and a front facing window, creating a bright, easy to furnish room. To the rear, the kitchen diner offers a practical layout with a range of wall and base units, integrated oven, gas hob, and space for appliances, making it well suited to modern routines. The conservatory overlooks the garden and works well as a dining area, home office, or relaxing sitting space, with patio doors opening directly outside.

Upstairs, there are two bedrooms, both positioned to the rear, plus a bathroom fitted with a three piece suite and shower over the bath. Outside, the enclosed rear garden includes a patio and lawn, with gated access to the rear, while the front has a small lawned area and parking for several vehicles to the right hand side of the property. Hilton is a popular village with local shops, cafes, and everyday amenities, along with well regarded schooling. For commuting, there is convenient access to the A50 and A38, linking to Derby, Burton upon Trent, and beyond, with further transport connections available via nearby rail links and East Midlands Airport.

Entrance Hallway

Having part opaque glazed main entrance door, wooden flooring, neutral decor, radiator, staircase to the first floor and doors off to:

Guest Cloakroom/ Wc

Fitted with a two-piece suite comprising; low flush WC, pedestal wash hand basin with chrome hot and cold taps, complementary ceramic tile splash backs, radiator and an uPVC opaque double glazed window to front aspect.

Lounge (4.20m x 3.82 max)

Having neutral decor, wooden flooring, radiator, uPVC double-glazed window to the front aspect and door off to:

Kitchen Diner (3.81m x 2.81m)

Fitted with a range of wall, base and drawer units with rolled edge work surfaces, inset stainless steel sink top with side drainer, hot and cold mixer tap, gas hob with chimney style extractor hood over, complementary ceramic tile splash backs, integral electric oven, space and plumbing for automatic washing machine, further space for appliances, uPVC double glazed window to the rear aspect and door off to:

Conservatory (3.53m x 3.75m)

Having laminate flooring, electric wall feature fire, uPVC double-glazed windows and patio doors to the rear garden.

First Floor Landing

Having carpet to flooring, neutral decor, access to loft space and doors off to:

Bedroom One (3.82m x 2.47m)

Having radiator, carpet to flooring and uPVC double glazed window to rear aspect.

Bedroom Two (2.89m x 2.51m)

Fitted with a cupboard with access to electric hot water boiler, radiator, carpet to flooring and uPVC double glazed window to rear aspect.

Family Bathroom (1.94m x 1.87m)

Fitted with a three-piece suite comprising; a low flush WC, pedestal wash hand basin with chrome mixer tap, panel bath with chrome mixer tap and thermostatic shower over, folding glass shower screen, complementary ceramic tile splash backs, laminate flooring, radiator and extractor fan.

Outside

To the rear of the property is an enclosed garden with timber fencing, patio area, lawn and gated access to the rear. To the front of the property is a small lawned area and parking for several vehicles to the right hand side of the property.

Material Information

Verified Material Information

Council Tax band: B
Tenure: Freehold
Property type: House
Property construction: Standard brick and block construction
Energy Performance rating: D
Number and types of room: 2 bedrooms, 1 bathroom, 2 receptions
Electricity supply: Mains electricity
Solar Panels: No
Other electricity sources: No
Water supply: Mains water supply
Sewerage: Mains
Heating: Mains gas-powered central heating is installed. The system was installed on 3 Jan 2025.
Heating features: Double glazing
Broadband: FTTP (Fibre to the Premises)
Mobile coverage: O2 - Good, Vodafone - OK, Three - Good, EE - Good
Parking: Driveway
Building safety issues: No
Restrictions - Listed Building: No
Restrictions - Conservation Area: No
Restrictions - Tree Preservation Orders: None
Public right of way: No
Long-term area flood risk: Yes
Historical flooding: No
Flood defences: No
Coastal erosion risk: No
Planning permission issues: No
Accessibility and adaptations: None
Coal mining area: No
Non-coal mining area: No
Loft access: Yes - insulated and boarded, accessed by: Drop down loft steps

All information is provided without warranty. Contains HM Land Registry data © Crown copyright and database right 2021. This data is licensed under the Open Government Licence v3.0.

The information contained is intended to help you decide whether the property is suitable for you. You should verify any answers which are important to you with your property lawyer or surveyor or ask for quotes from the appropriate trade experts: builder, plumber, electrician, damp, and timber expert.

For online report, please follow this link:
https://moverly.com/sale/FKGCP3AgcMpoaCUeEcRpcu/view

Disclaimer

These particulars, whilst believed to be accurate are set out as a general outline only for guidance and do not constitute any part of an offer or contract. Floor plans are not drawn to scale and room dimensions are subject to a +/- 50mm (2") tolerance and are based on the maximum dimensions in each room. Intending purchasers should not rely on them as statements of representation of fact but must satisfy themselves by inspection or otherwise as to their accuracy. No person in this firm’s employment has the authority to make or give any representation or warranty in respect of the property or offer any legal advice regarding any aspect of the property and any buyer should consult their own legal representative on any such matters.

Photographs shown are from when we previously marketed the property in 2023.

What3Words Location

///heckler.consumed.bath

Buying to Let?

Guide achievable rent price: £900PCM

The above as an indication of the likely rent price you could achieve in current market conditions for a property of this type, presented in good condition. Scoffield Stone offers a full lettings and property management service, so please ask if you would like more information about the potential this property has as a 'Buy to Let' investment.

ID Checks for buyers

To keep the buying process safe and secure, we carry out ID checks on all buyers. This is a legal requirement that helps protect everyone involved in the sale and ensures a smooth transaction. There is a small non-refundable charge of £25 per person to cover the cost of these checks.


Location


Floorplan

Floorplan

EPC

EPC for Trusley Brook, Hilton, Derby
Share this property