Floating Image

£510,000

4 bedroom Detached house for sale

Main Street, Hilton, Derby

  • Detached house
  • 4 bed
  • 2 bath
  • 4 reception

Key Features

  • 165 sq m
  • Detached barn conversion
  • Four bedrooms
  • Four receptions
  • Horseshoe driveway
  • Private garden
  • Workshop garage
  • Village centre
  • En suite
  • Four piece bathroom

Description

Summary Description

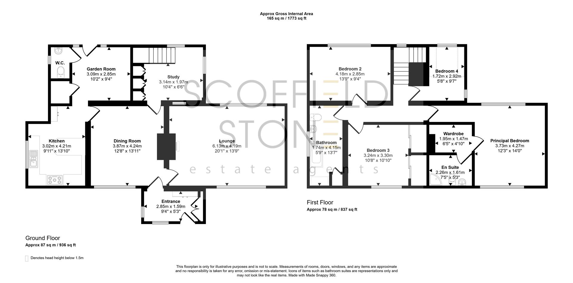
The Old Barn, Main Street, Hilton is a distinctive four bedroom detached barn conversion set on a substantial plot in the heart of Hilton, Derbyshire. Originally dating back to around 1850 as a grain storage barn serving the Old Mill on Mill Lane, the property was later converted to residential use and has evolved over time into a spacious and characterful family home. Extending to approximately 165 square metres (1773 square feet), this home combines period charm with practical living space, making it well suited to buyers seeking something individual, central and versatile.

Inside, the layout offers excellent flexibility with four reception rooms including a dining room, lounge, study and garden room. Character features such as exposed beams, leaded internal glazing and a decorative fireplace sit comfortably alongside modern touches including a fitted kitchen with island and range cooker. The principal bedroom is a particularly strong feature, offering a generous sleeping area, dressing space and en suite shower room. There are three further bedrooms, a four piece family bathroom, a ground floor WC and useful built in storage. Outside, the property continues to impress with a sweeping driveway, ample parking, a large garage workshop and a private landscaped rear garden with patio, lawn, decked seating area and gazebo.

Hilton remains one of South Derbyshire’s most popular villages, offering a strong range of everyday amenities including shops, pubs, cafes, schooling and healthcare facilities. The property is well placed for access to Hilton Primary School and John Port Spencer Academy in nearby Etwall, subject to catchment and admissions. For commuters, the A50 is within easy reach, linking Derby, Burton upon Trent, Uttoxeter and the wider motorway network, while regular bus services connect Hilton with surrounding centres.

Entrance Porch (2.84m x 1.60m)

Carpeted, front and side aspect upvc double glazed windows, front aspect part glazed composite main entrance door, fitted storage cupboard.

Dining Room (3.86m x 4.24m)

Having wood flooring, front aspect upvc double glazed window, beamed ceiling, radiator.

Lounge (6.12m x 4.19m)

Having wood flooring, front and rear aspect upvc double glazed windows, beamed ceiling, decorative Adam style fireplace, tv point, two radiators, decorative leaded window to study.

Kitchen (3.02m x 4.22m)

Having wood effect laminate flooring, front and side aspect upvc double glazed windows, beamed ceiling, fitted wall and floor units to gloss white with stone effect worktops, island unit, tiled splashbacks, inset composite sink with drainer and chrome monobloc tap, stainless steel induction range oven with chimney style extractor hood over, under counter space and plumbing for appliances, radiator.

Garden Room (3.10m x 2.84m)

Having wood effect laminate flooring, beamed ceiling, rear aspect upvc double glazed door to garden, radiator, storage cupboard with plumbing for appliances.

Guest Cloakroom/WC

Having wood effect laminate flooring, side aspect obscure upvc double glazed window, fully tiled walls, low flush wc, pedestal wash hand basin with chrome hot and cold taps.

Study (3.15m x 1.98m)

Carpeted, rear and side aspect upvc double glazed window, fitted storage cupboards, decorative leaded window to lounge, radiator, internet access, access to:-

Stairs/Landing

Carpeted, wooden spindle staircase.

Principal Bedroom (3.73m x 4.27m)

Carpeted, front and rear aspect upvc double glazed windows, two radiators, giving access to:-

Dressing Area (1.96m x 1.47m)

Carpeted, hanging and shelved storage, access to roof space, giving access to:-

En Suite Shower Room (2.26m x 1.60m)

Having wood effect laminate flooring, fully tiled walls, vanity unit with wash hand basin having chrome monobloc tap, and low flush wc, double shower enclosure with plumbed shower.

Bedroom Two (4.19m x 2.84m)

Carpeted, front aspect upvc double glazed windows, fitted wardrobes, access to roof space, radiator.

Bedroom Three (3.25m x 3.30m)

Carpeted, rear aspect upvc double glazed window, access to roof space.

Bedroom Four (1.73m x 2.92m)

Carpeted, rear and side aspect upvc double glazed windows, radiator.

Bathroom (1.75m x 4.14m)

Having ceramic tiled flooring, side aspect obscure upvc double glazed window, part tiled walls, double shower enclosure with electric shower, bathtub with chrome mixer tap having shower attatchment, wash hand basin with chrome monobloc tap set to vanity cupboard, wc, airing cupboard with hot water cylinder, radiator.

OUTSIDE

Frontage and Driveway

To the front, a sweeping tarmacadam driveway is enclosed by a low wall, providing ample parking for multiple vehicles. Additional parking is available beyond the rear gates, complemented by areas of herbaceous planting that enhance the setting.

Rear Garden

The driveway extends to the rear of the property beyond double timber gates to a large and attractively landscaped, private garden which provides a good mixture of paved patio, lawn, established herbaceous borders and rear decked patio with gazebo. There is outdoor water and power.

Garage/Workshop (6 x 5.5)

A large very versatile space with front aspect upvc double French doors, light, power, side aspect window and door.

Material Information

Verified Material Information

Council Tax band: E
Tenure: Freehold
Property type: House
Property construction: Standard brick and block construction
Energy Performance rating: No Certificate
Number and types of room: 4 bedrooms, 2 bathrooms, 4 receptions
Electricity supply: Mains electricity
Solar Panels: No
Other electricity sources: No
Water supply: Mains water supply
Sewerage: Mains
Heating: Mains gas-powered central heating is installed. The system was installed at an unknown date.
Heating features: Double glazing and Open fire
Broadband: FTTP (Fibre to the Premises)
Mobile coverage: O2 - Good, Vodafone - Good, Three - Great, EE - Great
Parking: Driveway, Gated, Garage, Off Street, and Rear
Building safety issues: No
Restrictions - Listed Building: No
Restrictions - Conservation Area: No
Restrictions - Tree Preservation Orders: None
Public right of way: No
Long-term area flood risk: No
Historical flooding: No
Flood defences: No
Coastal erosion risk: No
Planning permission issues: No
Accessibility and adaptations: None
Coal mining area: No
Non-coal mining area: No
Loft access: Yes - insulated and boarded, accessed by: Loft hatch and ladder

Follow the link for the full report:
https://moverly.com/sale/W5mBayxScRTJbuKgW8cuQJ/view

All information is provided without warranty. Contains HM Land Registry data © Crown copyright and database right 2021. This data is licensed under the Open Government Licence v3.0.
The information contained is intended to help you decide whether the property is suitable for you. You should verify any answers which are important to you with your property lawyer or surveyor or ask for quotes from the appropriate trade experts: builder, plumber, electrician, damp, and timber expert.

Buying to Let?

Guide achievable rent price: £1750pcm

The above as an indication of the likely rent price you could achieve in current market conditions for a property of this type, presented in good condition. Scoffield Stone offers a full lettings and property management service, so please ask if you would like more information about the potential this property has as a 'Buy to Let' investment.

Disclaimer

These particulars, whilst believed to be accurate are set out as a general outline only for guidance and do not constitute any part of an offer or contract. Floor plans are not drawn to scale and room dimensions are subject to a +/- 50mm (2") tolerance and are based on the maximum dimensions in each room. Intending purchasers should not rely on them as statements of representation of fact but must satisfy themselves by inspection or otherwise as to their accuracy. No person in this firm’s employment has the authority to make or give any representation or warranty in respect of the property or offer any legal advice regarding any aspect of the property and any buyer should consult their own legal representative on any such matters.

Location / what3words

///albatross.furnish.fixed

ID Checks for buyers

To keep the buying process safe and secure, we carry out ID checks on all buyers. This is a legal requirement that helps protect everyone involved in the sale and ensures a smooth transaction. There is a small non-refundable charge of £25 per person to cover the cost of these checks.


Location


Floorplan

Floorplan
Share this property