Floating Image

£460,000

4 bedroom Detached house for sale

Arkwright Way, Etwall, Derby

  • Detached house
  • 4 bed
  • 2 bath
  • 2 reception

Key Features

  • Etwall village
  • Bloor Homes
  • Four doubles
  • Detached home
  • Open plan
  • Home office
  • En suite
  • Driveway parking
  • Detached garage
  • Landscaped garden

Description

Summary Description

Set within a popular Bloor Homes development in the highly regarded village of Etwall, this modern four bedroom detached family home offers well planned space, driveway parking and a detached single garage. With front and rear gardens and a layout that suits both everyday family life and working from home, the property is well presented throughout and ready for a new owner to move straight in.

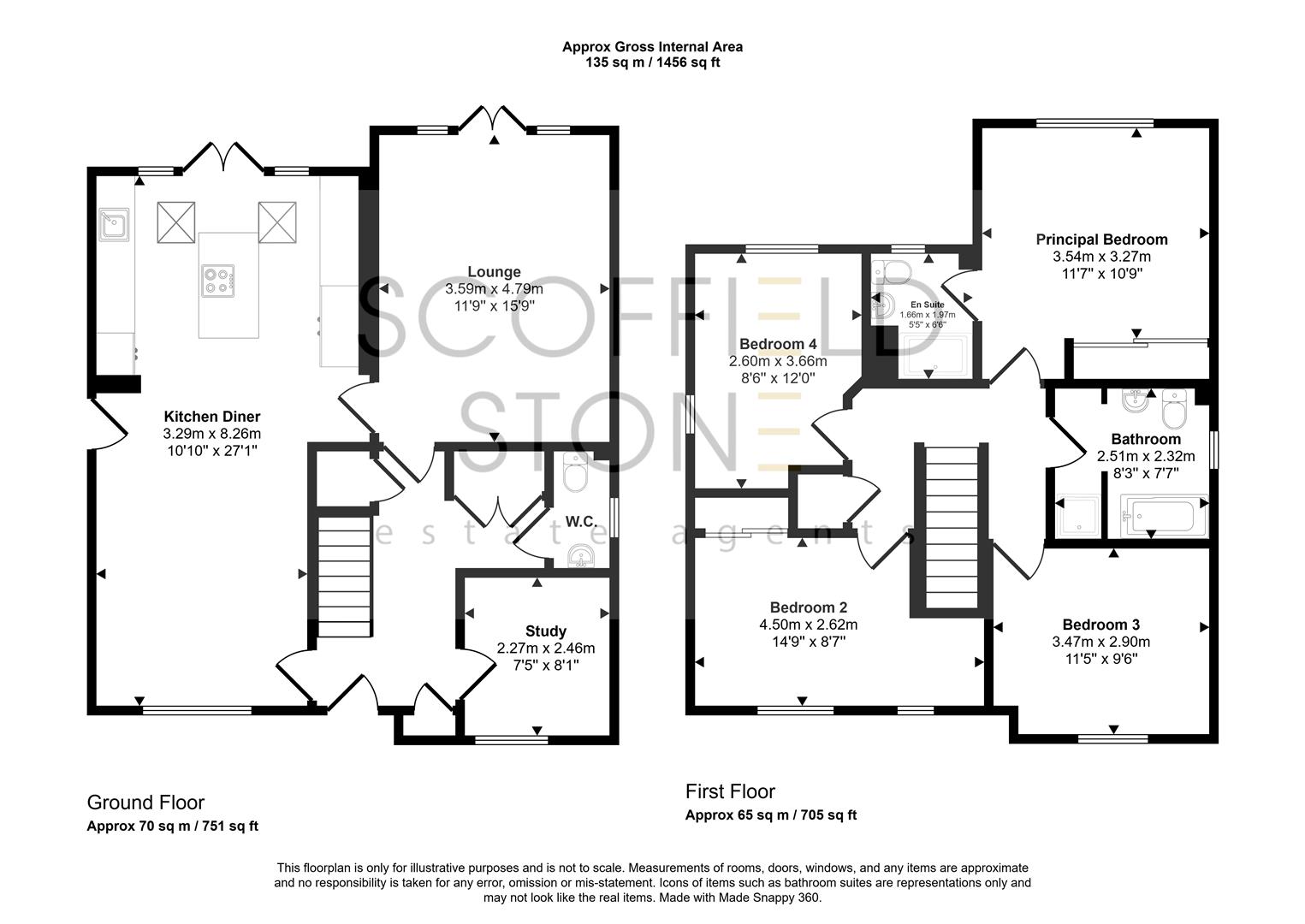
The entrance hall features wood effect Amtico flooring, useful storage including a walk in cupboard with an internet access point, plus an under stairs store and a practical utility cupboard with worktop and plumbing space for appliances. The open plan kitchen diner is a real hub of the home, fitted with gloss cream units, stone worktops and an island with induction hob, plus integrated appliances and double ovens. French doors and rooflights bring in plenty of natural light and open onto the enclosed rear garden. A separate lounge also enjoys French doors to the garden, while the front facing study provides an ideal home office. Upstairs you will find four double bedrooms, including a principal bedroom with fitted wardrobes and an en suite shower room, along with a family bathroom featuring both a bath and a separate shower enclosure.

Etwall is a well connected South Derbyshire village known for its strong community feel, local shops and everyday amenities, plus reputable schooling options nearby. The location offers straightforward access to Derby, Burton upon Trent and the A50, making it ideal for commuters. There are also pleasant green spaces and countryside walks close by, while public transport links provide additional convenience for day to day travel.

Entrance Hall

Having wood effect Amtico flooring, part obscure glazed composite main entrance door, walk in cupboard with internet access point, under stairs storage, utility cupboard with worktop and under counter space and plumbing for appliances.

Open Plan Kitchen/Diner (3.30m x 8.26m)

Having wood effect ceramic tiled flooring, front aspect upvc double glazed window, rear aspect upvc double glazed French doors to garden with side windows, two Velux rooflights, inset lights to ceiling, fitted wall and floor units to gloss cream with stone worktops, island unit with inset induction hob, chimney style extractor hood, inset stainless steel sink with drainer and chrome mixer tap with salt filter, integrated dishwasher, integrated refrigerator, integrated double electric oven.

Lounge (3.58m x 4.80m)

Carpeted, rear aspect upvc double glazed French doors to garden with side windows, inset lights to ceiling, tv point, two radiators.

Study (2.26m x 2.46m)

Carpeted, front aspect upvc double glazed window, radiator.

Guest Cloakroom/WC

Having Amtico flooring, side aspect obscure upvc double glazed window, low flush wc, pedestal wash hand basin with chrome monobloc tap and tiled splashback, radiator.

Stairs/Landing

Carpeted, wooden staircase, airing cupboard, access to roof space, radiator.

Principal Bedroom (3.53m x 3.28m)

Carpeted, rear aspect upvc double glazed window, fitted wardrobes, radiator.

En Suite Shower Room (1.65m x 1.98m)

Having ceramic tiled flooring, rear aspect upvc double glazed window, inset lights to ceiling, tiled splashbacks, low flush wc, wall mounted wash hand basin with chrome monobloc tap, shower enclosure with plumbed shower, radiator.

Bedroom Two (4.50m x 2.62m)

Carpeted, front aspect upvc double glazed window, radiator.

Bedroom Three (3.48m x 2.90m)

Carpeted, two front aspect upvc double glazed windows, fitted wardrobes, radiator.

Bedroom Four (2.59m x 3.66m)

Carpeted, rear and side aspect upvc double glazed windows, radiator.

Bathroom (2.51m x 2.31m)

Having ceramic tiled flooring, side aspect obscure upvc double glazed window, inset lights to ceiling, tiled splashbacks, wash hand basin set to vanity cupboard with chrome monobloc tap, low flush wc, bathtub with chrome mixer tap having shower attatchment, single shower enclosure with plumbed shower, chrome heated towel rail.

OUTSIDE

Frontage and Driveway

Garage

A single garage with metal up and over door, light power and potential for roof storage.

Rear Garden

Accessed via the kitchen, lounge or driveway you will find an enclosed private garden which has been landscaped to provide a mixture of paved patio, lawn and herbaceous planting borders. Power socket and cold water tap.

Material Information

Verified Material Information

Council Tax band: E
Council Tax annual charge: £2566.17 a year (£213.85 a month)
Tenure: Freehold
Property type: House
Property construction: Standard construction
Energy Performance rating: B
Electricity supply: Mains electricity
Solar Panels: No
Other electricity sources: No
Water supply: Mains water supply
Sewerage: Mains
Heating: Mains gas-powered central heating is installed.
Heating features: Double glazing
Broadband: FTTP (Fibre to the Premises)
Mobile coverage: O2 - OK, Vodafone - OK, Three - Good, EE - Great
Parking: Driveway and Garage
Building safety issues: No
Restrictions - Listed Building: No
Restrictions - Conservation Area: No
Restrictions - Tree Preservation Orders: None
Public right of way: No
Long-term area flood risk: No
Historical flooding: No
Flood defences: No
Coastal erosion risk: No
Planning permission issues: No
Accessibility and adaptations: Wide doorways
Coal mining area: No
Non-coal mining area: No

All information is provided without warranty. Contains HM Land Registry data © Crown copyright and database right 2021. This data is licensed under the Open Government Licence v3.0.

The information contained is intended to help you decide whether the property is suitable for you. You should verify any answers which are important to you with your property lawyer or surveyor or ask for quotes from the appropriate trade experts: builder, plumber, electrician, damp, and timber expert.

Follow the link for the full report:
https://moverly.com/sale/9H2ngxQrJjtQdFhr6vTZko/view

Buying to Let?

Guide achievable rent price: £1650pcm

The above as an indication of the likely rent price you could achieve in current market conditions for a property of this type, presented in good condition. Scoffield Stone offers a full lettings and property management service, so please ask if you would like more information about the potential this property has as a 'Buy to Let' investment.

Disclaimer 03/2021

These particulars, whilst believed to be accurate are set out as a general outline only for guidance and do not constitute any part of an offer or contract. Floor plans are not drawn to scale and room dimensions are subject to a +/- 50mm (2") tolerance and are based on the maximum dimensions in each room. Intending purchasers should not rely on them as statements of representation of fact but must satisfy themselves by inspection or otherwise as to their accuracy. No person in this firm’s employment has the authority to make or give any representation or warranty in respect of the property or offer any legal advice regarding any aspect of the property and any buyer should consult their own legal representative on any such matters.

Location / what3words

///glow.offer.motorist

ID Checks for buyers

To keep the buying process safe and secure, we carry out ID checks on all buyers. This is a legal requirement that helps protect everyone involved in the sale and ensures a smooth transaction. There is a small non-refundable charge of £25 per person to cover the cost of these checks.


Location


Floorplan

Floorplan

EPC

EPC for Arkwright Way, Etwall, Derby
Share this property